Josse Deluen, votre maître d’oeuvre en Vendée
Situé à Montaigu-Vendée, Josse Deluen maître d’oeuvre en Vendée, vous accompagne pour tous vos projets de construction de maison et d’extension.

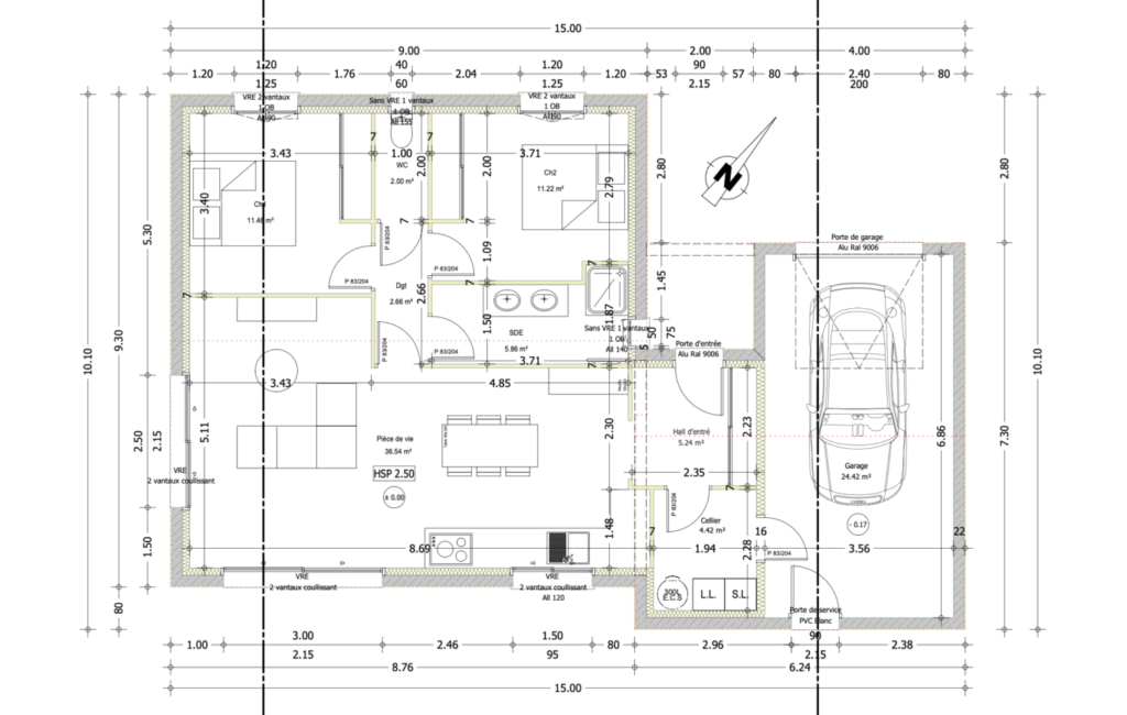
Plan de maison
Écoute attentive, créativité et personnalisation pour votre projet de construction de votre maison individuelle. De la conception du plan de votre maison sur-mesure jusqu’au dépôt du permis de construire, Josse Deluen Maître d’oeuvre vous accompagne à chaque étape.

Devis
Avec transparence, nous définissons ensemble le budget le plus adapté pour votre projet de construction. Avec nos artisans partenaires, nous vous proposons un ensemble de devis optimisés au plus juste pour vous permettre de valider en toute sérénité votre projet de construction de maison neuve.

Suivi de chantier
Vous recherchez un partenaire fiable pour vous assister dans la coordination et la bonne conduite de vos travaux de construction de maison ? Notre expérience vous assure un suivi de chantier efficace, dans le respect du budget et des délais.

Le choix d’un maître d’oeuvre en Vendée à votre écoute
Chaque projet est unique et doit être adapté à vos besoins, votre mode de vie et vos envies du quotidien. Avec attention et expertise, Josse Deluen maître d’oeuvre en Vendée, conçoit avec vous votre projet de maison sur-mesure.
Conception du plan de votre maison, métrés, chiffrage et devis, dépôt de demande de permis de construire, suivi et coordination de vos travaux, vous êtes accompagné à chaque étape de votre projet de construction neuve.
“Construire une maison, c’est d’abord comprendre les attentes de chaque membre de la famille. C’est construire leur projet. ”
Josse Deluen
Qualité et réactivité pour votre projet de construction de maison
Fort d’une expérience de plus de 10 ans dans les métiers de la construction et du bâtiment et plus précisément dans le gros œuvre, Josse Deluen maître d’œuvre assure la parfaite réalisation de votre projet de construction de maison individuelle, à chaque étape.
Notre approche s’appuie sur un accompagnement complet et un service de grande qualité et de proximité. Transparence, ancrage local et écoute du client sont les valeurs que nous défendons afin d’apporter à votre projet un accompagnement qui vous apporte la sérénité.

Vous avez un projet de construction de maison ou d’extension ?
Rencontrons-nous. À Montaigu-Vendée et tout autour, je viens à votre rencontre. Alors n’hésitez pas.